시체적 전기 중간 전압 스위치 캐비닛 : 중간 전압 분배 스테이션에 특별히 사용되는 스위치 기어. 중간 전압 스위치 캐비닛은 중간 전압 분배 스테이션에 특별히 사용되는 스위치 기어 (Switch Gear)입니다. 시체적 전기에 의해 생성 된 스위치 기어 (Switch Gear)는 타임 메트릭 전기에 의해 생성 된 스위치 기어입니다. 최후의 전기 전압 스위치 캐비닛은 GB3906-1991 표준에 적합합니다. 시체적 전기 중간 전압 스위치 캐비닛은 캐비닛과 회로 차단기로 구성되며 오버 헤드 및 나가는 라인, 케이블 수신 및 나가는 라인 및 버스 바 연결과 같은 기능이 있습니다. 정격 전압은 1-17.5kV이고 정격 전류는 630-4000A입니다.
중간 전압 스위치 캐비닛의 전압 범위는 3kV, 6kV, 10kV, 20kV 및 35kV와 같은보다 일반적인 전압 레벨을 포함하여 36kV 내로 확장 될 수 있습니다.
응용 분야 : 중간 전압 스위치 캐비닛은 주로 도시 주거 지역, 공공 건물, 고속도로, 화학 산업 등에서 전력 전송 및 유통 및 변전소 흡입구 및 출구 제어 및 보호에 사용됩니다.
중간 전압 스위치 캐비닛은 무엇입니까? 중간 전압 스위치 이외의 다른 장비에 대해 절연 성능이 우수한 금속 가입 스위치 기어는 전원 장비를 통해 아크가 연소되는 것을 방지하고 전력 사용의 안전성을 보장하며 전기를 사용할 때 중간 전압 스위치의 고장 범위의 확장을 피합니다. 중간 전압 스위치 캐비닛은 캐비닛 본체와 회로 차단기의 두 가지 주요 부분으로 구성되며 오버 헤드 흡입구 및 출구 라인, 케이블 흡입구 및 콘센트 라인 및 버스 바 연결과 같은 기능이 있습니다. 캐비닛 본체는 하우징, 전기 부품 (절연 부품 포함), 다양한 메커니즘, 2 차 단자 및 연결로 구성됩니다.
중간 전압 스위치 기어의 범주는 무엇입니까?
중간 전압 스위치 기어의 구조에 따르면 중간 전압 스위치 기어의 여러 범주가 있습니다.
(1) 반사 중간 전압 스위치 기어, 캐비닛의 앞면과 측면이 밀폐되어 있고, 뒷면 및 버스 바가 노출되고, 구조가 간단하고, 비용이 낮고, 안전이 좋지 않으며, GGLA 유형과 같이 제거되기에 가깝습니다.
(2) 금속 쉘이있는 박스형 중간 전압 스위치 기어 (Box-Type Medium-Voltage Switch Gear)는 구획이 적 으면 버스 바도 밀폐되어 있으며 안전성이 더 좋습니다. XGN 유형과 같은.
(3) 간격 유형 중간 전압 스위치 기어, 각 객실은 하나 이상의 비금속 파티션으로 분리되며 안전이 더 좋습니다. Jyn 유형과 같은.
(4) 장갑 중간 전압 스위치 기어, 각 객실은 금속 파티션으로 분리되어 안전, 복잡한 구조, 높은 가공 정밀도 및 약간 높은 가격으로 접지됩니다. 중국에서 만든 Kyn 유형 및 ZSL 유형의 ABB와 같은.
| ltem | 단위 | 매개 변수 | |
| 정격 전압 | KV | 36 | 40.5 |
| 정격 주파수 | HZ | 50 | |
| 평가 된 큐렌트 | A | 63012501600200025003150 | |
| 지점 버스 바 등급 전류 | A | 63012501600200025003150 | |
| 메인 버스 바 등급 전류 | A | 63012501600200025003150 | |
| 1 분 전력 주파수 견실 전압 | KV | 70 | 95 |
| 번개 충동 견해 전압 | KV | 170 | 185 |
| 정격 단기 견해 전류 (4S) | 그만큼 | 16/20/25/31.5/40 | |
| 정격 단락 파괴 큐렌트 (피크) | 그만큼 | 40/50/63/80/100 | |
| 제어 회로의 정격 전압 | V | DC110, DC220, AC220 | |
중간 전압 스위치 기어의 사용 환경 요구 사항에는 온도, 습도, 고도, 대기 질 및 기타 측면이 포함됩니다.
1. 온도 요구 사항 the : 중간 전압 스위치 기어의 온도 요구 사항은 일반적으로 -5 ° ~+40 ℃입니다. 온도 가이 범위를 초과하면 전기 캐비닛의 전기 성능, 기계적 성능 및 보호 수준이 영향을받습니다.
2. 습도 요구 사항 : 중간 전압 스위치 기어의 습도 요구 사항은 일반적으로 상대 습도가 50%를 초과하지 않는다는 것입니다. 습도가 너무 높으면 누수, 단열재 감소 및 기타 문제가 전기 캐비닛 내부에서 발생할 수있어 장비의 서비스 수명 및 안전에 영향을 미칩니다.
3. 고도 요구 사항 : 고도 영역의 경우, 중간 전압 스위치 기어는 용량 감소 또는 관련 표준에 따라 전압 테스트를 견딜 수 있어야합니다. 예를 들어, 3,000 미터의 고도에서는 장비의 정상적인 작동을 보장하기 위해서는 단열재 보정 및 견실 전압 테스트가 필요합니다.
4. 대기 질 요구 사항 : 중간 전압 스위치 기어의 대기 질 요구 사항은 비교적 높으며 일반적으로 부식성 가스, 먼지 및 기타 유해 물질을 포함하지 않습니다. 이러한 유해한 물질이 공기 중에 존재하면 전기 장비를 손상시키고 장비의 서비스 수명 및 안전에 영향을 미칩니다
중간 전압 스위치 기어의 주요 특징과 장점에는 다음과 같은 측면이 포함됩니다.
1. 고성능 매개 변수 : 중간 전압 스위치 기어에는 고전압 삭제 기능 및 단락 전류 견해 기능과 같은 우수한 성능 매개 변수가 있습니다. 예를 들어, 중간 전압 스위치 기어의 번개 충동 견해 전압은 75kV에 도달하며 정격 단기 내차 전류는 25-40KA에 도달 할 수 있습니다. 다양한 고전압 환경에서 안정적으로 작동 할 수 있으며 전력 시스템의 과전압 및 단락 전류와 같은 결함 충격을 효과적으로 저항하고 전원 공급 장치의 연속성을 보장합니다.
2. 좋은 단열 및 아크 성능 : 중간 전압 스위치 기어는 좋은 단열재와 아크 성능으로 설계되었습니다. 예를 들어, 중간 전압 스위치 기어의 내부 아크 용량은 IAC 수준 AFLR 표준을 충족하는 31.5ka/4s 및 40ka/0.5s에 도달하면 내부 결함 중에 아크의 충격 범위를 효과적으로 제한하고 캐비닛 및 주변 장비의 손상을 줄이며 인사 및 장비의 안전을 보장 할 수 있습니다.
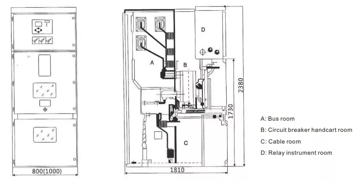
3. 모듈 식 및 소형화 된 설계 : 중간 전압 스위치 기어는 일반적으로 생산, 조립, 유지 관리 및 정밀 검사가 쉬운 모듈 식 설계를 채택합니다. 예를 들어, 중간 전압 스위치 기어의 캐비닛은 Busbar Room, 회로 차단실, 케이블 룸 및 제어 구획과 같은 독립적 인 기능 단위로 나뉩니다. 각 장치의 크기 및 연결 인터페이스는 표준화되어 결함 위치 및 격리에 편리하여 정전 시간 및 유지 보수 비용을 줄입니다.
4. 또한 일부 모델의 캐비닛 너비는 550mm에 불과하므로 바닥 공간을 크게 줄이고 토지 자원이 빡빡한 장소에 적합합니다.
5. 지능형 기능 : 현대 중간 전압 스위치 기어는 임베디드 지능 온도 모니터링, 진공 아크 챔버 특성 모니터링, 트롤리 캐비닛 지능형 모니터링, 기계적 특성 및 2 차 회로 모니터링 등을 포함한 다양한 지능형 기능을 가지고 있습니다. 이는 장비 운영 상태를 실시간으로 파악하고 잠재적 인 결함 관리를 발견 할 수 있으며, 장비 유지 속도를 낮추고, 장비 실패를 줄이고, 장비 실패를 줄일 수 있습니다. 전기 트롤리 및 지상 나이프 제어, 모니터링 및 보호 등으로 장비 자동화 및 운영 안전도를 향상시킵니다. 6. 높은 안전 보증 : 중간 전압 스위치 기어는 5 개의 보호 연동 및 기타 안전 조치로 설계되었습니다. 예를 들어, 중간 전압 스위치 기어는 5 개의 보호 인터록 디자인을 채택하여 회로 차단기의 부하, 오류 열기 및 잘못 폐쇄 등을 푸시 및 당기는 등의 오해를 방지하여 작업자의 안전을 기본적으로 보장합니다.

귀하의 회사는 내 요구 사항에 따라 제품을 사용자 정의 할 수 있습니까?
예, 고객 요구 사항에 따라 제품을 사용자 정의 할 수 있습니다. 일반적으로 고객은 회로 레이아웃, 전압, 전류 등을 제공하면됩니다.
가장 빠른 배송 시간은 얼마입니까?
일반적으로 고객 문의를 수락합니다. 스위치 캐비닛 기술 매개 변수가 연결된 후에는 가격 목록을 발행하고 실제 상황에 따라 생산 및 배송 시간에 대해 고객과 통신하는 데 1-2 일이 걸립니다.
애프터 판매 서비스는 어떻습니까?
우리는 1 년 보증을 지원합니다. 정상적인 견적에는 현장 애프터 판매 서비스가 포함되지 않습니다. 무료 온라인 커뮤니케이션 및 지침을 사용할 수 있습니다.